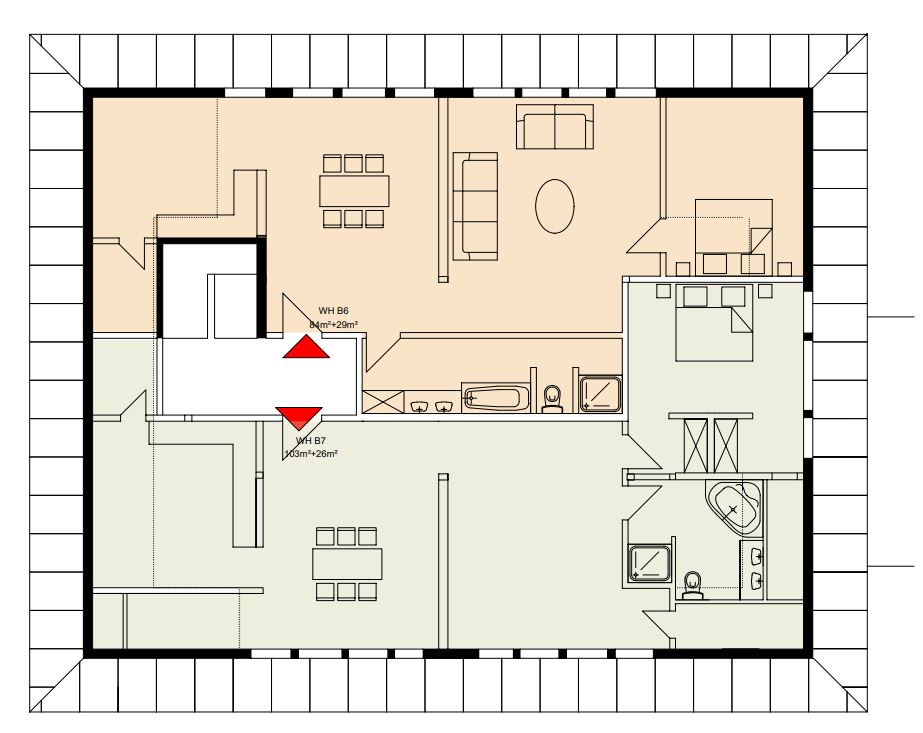
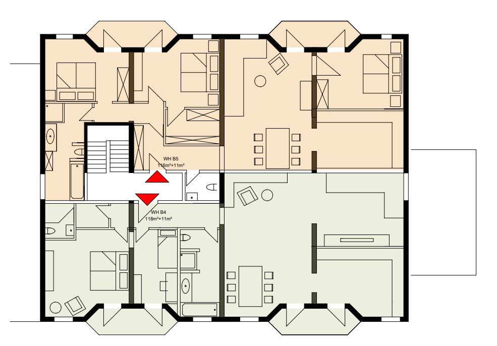
Pläne
Pläne Stand Dezember 2025. Änderungen vorbehalten.
Objektart: Denkmalgeschütztes Wohnensemble
Verkaufsform: Off-Plan-Verkauf (Kauf vor Sanierungsbeginn) direkt vom Bauträger
Baubeginn: Anfang 2026
Fertigstellung: Ende 2027
Wohnungen: von ca. 80m2
Stellplätze können erworben werden
Hausverwaltung steht zur Verfügung, auch eine Vermietung zum Zeitpunkt der Übergabe ist möglich.
